Pflege- und Gesundheitszentrum Blindenheim, Basel
Wenn Gesundheitszentren neu gebaut werden, dann verlegt man sie meistens an den Stadtrand. Dort ist Platz genug für eine bequeme räumliche und betriebliche Neukonzeption. Dafür fehlt die Interaktion, welche die Institution am alten Ort belebte, als sie noch Teil einer gewachsenen, pulsierenden Nachbarschaft war. Dass die Stiftung Blindenheim Basel den Tausch ‚Platz gegen Interaktion’ nicht mitmachen will, steht sinnbildlich für die Philosophie einer Institution, welche die ihr anvertrauten Menschen im aktiven Leben halten will.
Das hat zur Folge, dass die enorme Baumasse, die der wachsende Betrieb benötigt, in städtebaulich beengten Verhältnissen untergebracht werden muss. Zahlreich sind die Kräfte, welche von aussen auf die Form des künftigen Hauses einwirken: Hier die sehr nah stehenden Wohnhäuser, dort das benachbarte, ehrwürdige Schulhaus, welches respektvollen Abstand einfordert, ferner die bewegte Topografie und schliesslich das Baurecht.
Gerade in solcherlei Kontext ist es wichtig, dass der Baukörper als selbstbestimmter, in sich ruhender Akteur wirkt – und nicht als Opfer der auf ihn einwirkenden Kräfte untergeht.
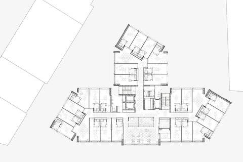
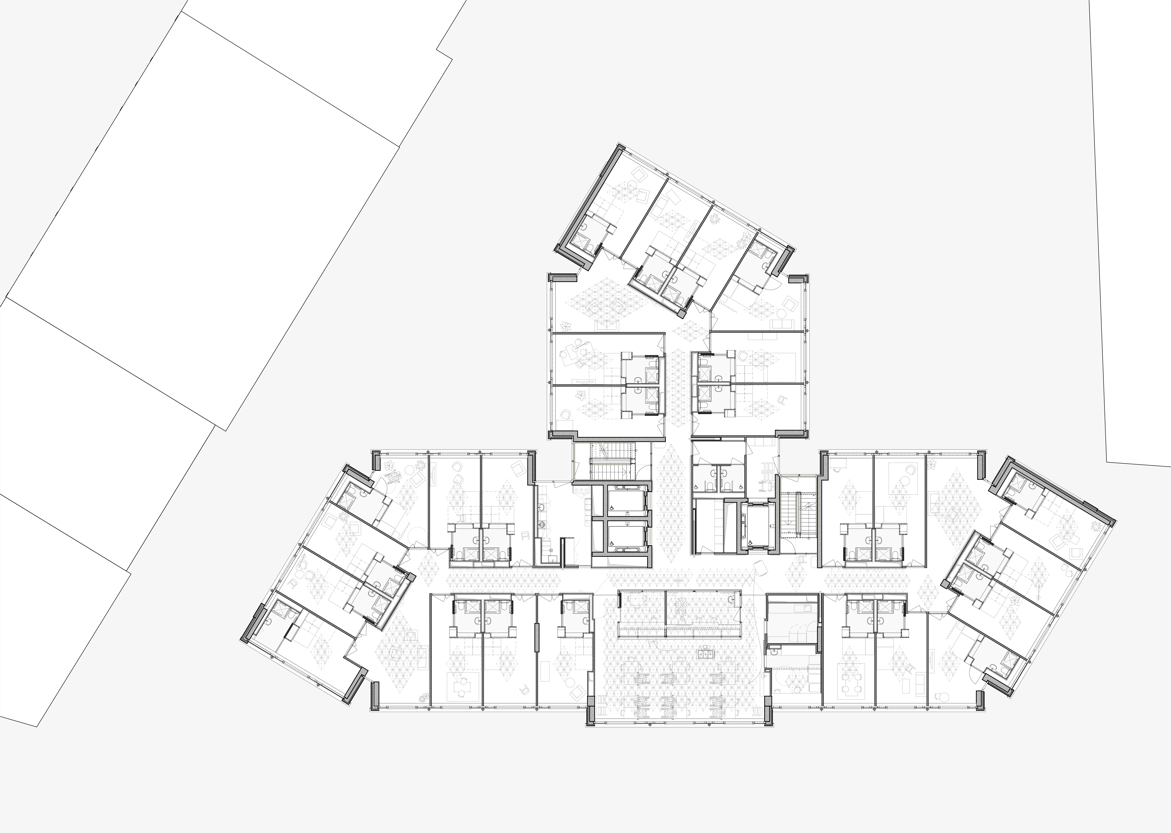
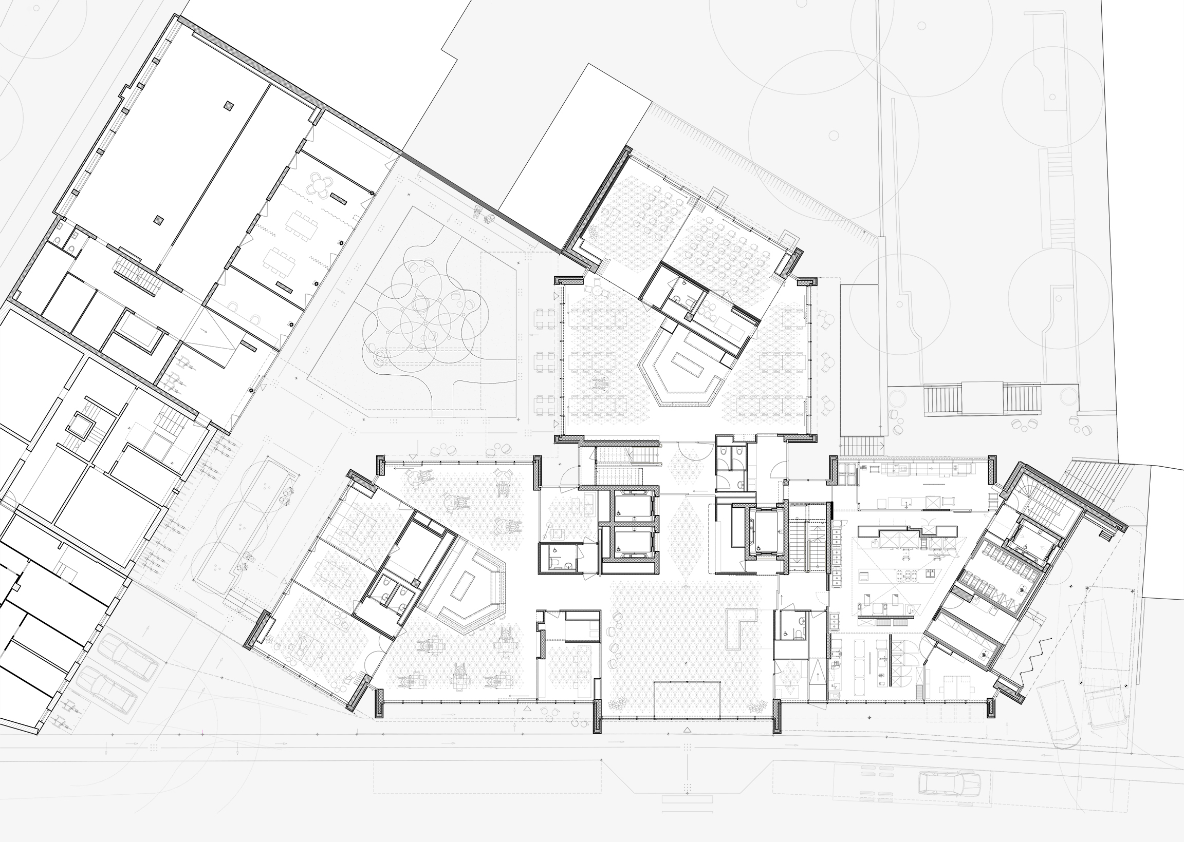
Die Bedingungen von Ort und Programm sollen nicht als formende Zwänge empfunden werden, sondern so, als seien sie ‚en passant’ auf das Selbstverständlichste gelöst worden. Wir schlagen vor: Einen dreiflügligen Gebäudetyp, dessen beide strassenbegleitenden Flügel einen Riegel bilden, während der dritte Flügel mittig die Hofseite besetzt. Die Flügel sind geformt von der polygonalen Parzellengeometrie und der Belichtung der Innenräume. Zwischen den Flügeln öffnen sich lauschige, begrünte Höfe.
Die Auseinandersetzung mit der Aufgabe hat uns deutlich vor Augen geführt, dass sehbehindertes Leben nicht einfach Leben in dunkler Nacht bedeutet. Viele Sehbehinderte unterscheiden durchaus Hell und Dunkel und die Dramaturgie der Lichtführung ist bei eingeschränkter Wahrnehmung wohl gar noch wichtiger als bei klarer Sicht. Gut geführtes Licht führt auch die Menschen im Haus gut.
Darum führen alle Wege im Haus ans Tageslicht – und überall dort, wo sie das Licht erreichen, liegen Orte besonderer Bedeutung: Gruppenräume, Gemeinschaftsbereiche, Treppenhäuser. So verbinden die Treppen nicht nur die Etagen miteinander, sondern auch Innenwelt und Ausblick. Sie laden dazu ein, zu Fuss zu gehen, statt Lift zu fahren.
Gedämmt ist das Licht nur in den kurzen Korridoren und dies durchaus im Sinn der Lichtdramaturgie.
Planung und Ausführung: 2020 -
Adresse: Kohlenberggasse 20, 4051 Basel
Programm: Ersatzneubau Pflege- und Gesundheitszentrum für sehbehinderte Menschen mit 99 Pflegezimmern
Bauherrschaft: Stiftung Blindenheim Basel
Auftragsart: Generalplanung
Zusammenarbeit: Proplaning AG, Basel
Mitarbeit Wettbewerb: Simon Rott, Mattia Furler, Nora Adili, Marco Rickenbacher
Mitarbeit Ausführung: Philippe Ayer (PL), Laura Harzheim (PL), Marco Rickenbacher (verantwortlicher Partner), Silvio Schubiger, Janele Suntinger, Loris Müller, Charlotte Neyenhuys, Ronja Rossier, Nina Hansen, Andreas Hasler, Alisa Labrenz, Basil Merz, Michal Sadowski
Landschaftsarchitektur: Stauffer Rösch AG, Basel
Bauingenieur: DSP Ingenieure + Planer AG, Uster
Baumanagement: Proplaning AG, Basel
Elektroplanung: Edeco AG, Aesch
Haustechnik: Bogenschütz AG, Basel
BIM-Support: Kaulquappe AG, Zürich
Bauphysik: Durable Planung und Beratung GmbH, Zürich
Akustik: Applied Acoustics GmbH, Gelterkinden
Lichtplanung: Michael Josef Heusi GmbH, Zürich
Signaletik: Integral Axel Steinberger GmbH, Zürich
Brandschutz: Aegerter & Bosshardt AG, Basel
Gastroplanung: Planbar AG, Zürich
Gebäudeautomation: Abicht AG, Zug
Fassadenplanung: Christoph Etter Fassadenplanungen, Basel
Geologie & Abbruch: Gruner Lüem AG, Basel
Türplanung & Sicherheit: Pro Engineering AG, Basel
Visualisierung: Indievisual AG, Zürich
Eindruck von der Baustelle - Foto: Walter Mair
Situation
Eindruck von der Baustelle - Foto: Walter Mair
Erdgeschoss mit Umgebung
Visualisierung: Blick von der Kohlenbergstrasse
Visualisierung: Gartenhof
Wohngeschoss
Attikageschoss
Visualisierung: Dachterrasse

