Wohnen im ehemaligen Weinlager, Basel
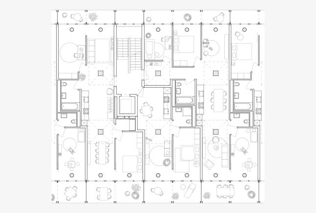
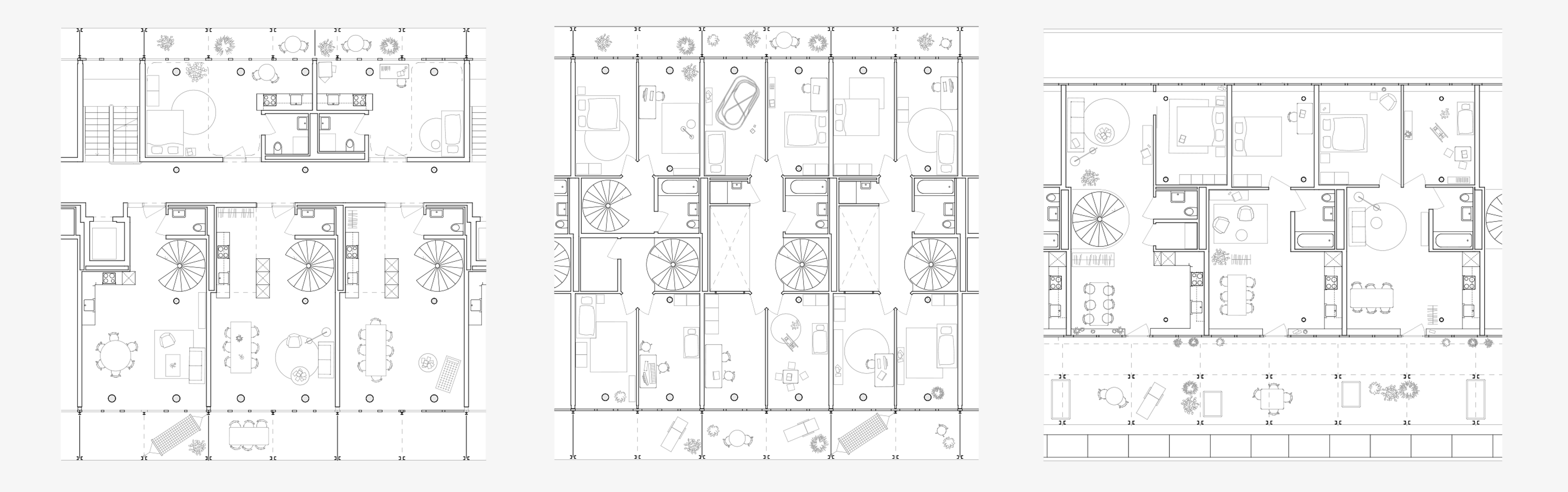
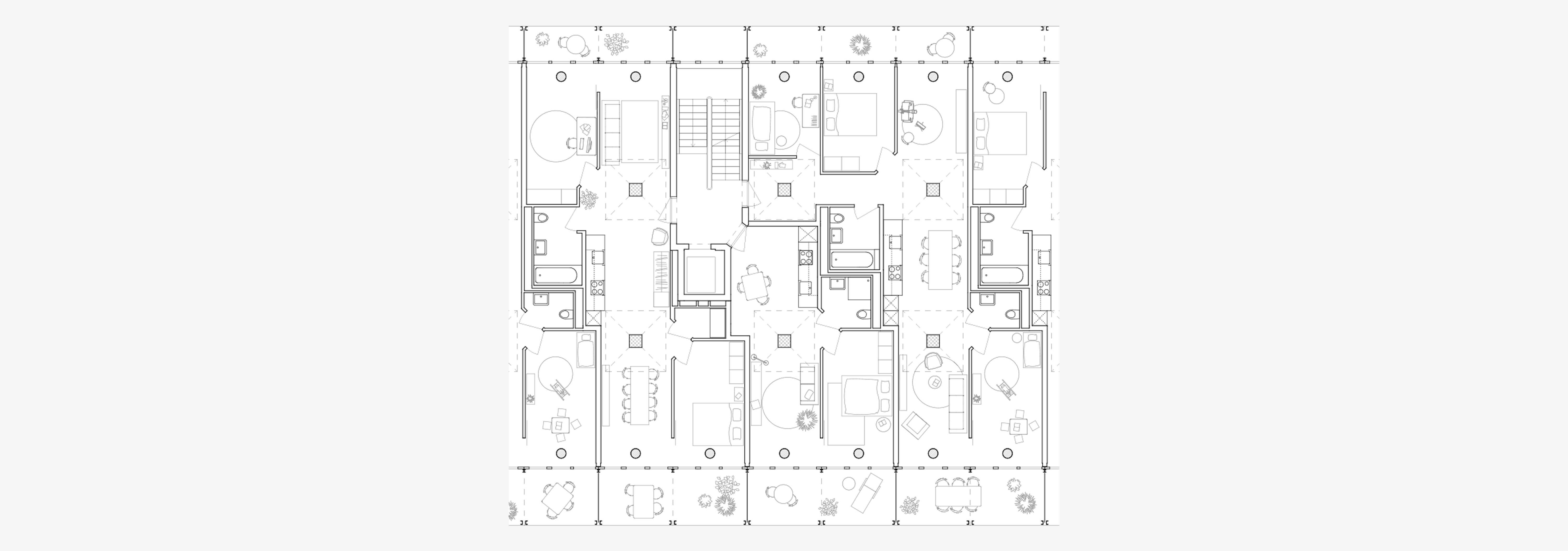
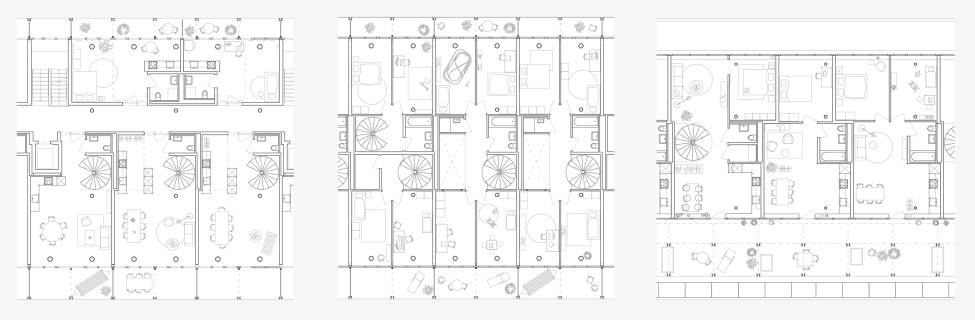
Die mächtigen Pilzstützen des ehemaligen Weinlagers sind die prägnantesten Elemente des Bestandes und bilden den Ausgangspunkt des Entwurfs. Um ihre Wirkung trotz der Kleinteiligkeit der neuen Wohnnutzung erlebbar zu behalten, werden sie in verschiedener Weise freigespielt und in Szene gesetzt: In den quer zur Gebäuderichtung liegenden Wohnungen ist ihre sperrige Monumentalität an sich ein Erlebnis – in der Sequenz sind sie in den beiden ‚Rues intérieures’ (inneren Strassen), die das Haus in Längsrichtung durchziehen, spürbar.
So bilden die Stützen auch den Ausgangspunkt für die innere Organisation des Hauses: Der eigentliche Städtebau ist zwar durch den Bestand gesetzt - doch entsteht entlang der inneren Strassen gewissermassen eine Stadt im Haus. Sie erschliessen nicht nur die Treppenhäuser und die gemeinschaftlichen Waschküchen - sie ermöglichen vor allem auch eine Vielfalt an Wohnungstypologien für alle Generationen und Lebensformen. Im Hochparterre öffnet sich die innere Strasse in die Eingangshallen und vernetzt über Treppen und Rampen die häusliche Sphäre mit der städtischen - an den viel mehr zur Stadt adressierten Gebäudeköpfen liegen die Gewerberäume und das Café. Seinen oberen Abschluss findet das Wegenetz im Gemeinschaftsraum und der kollektiven Dachterrasse.
Planung und Ausführung: 2018 – 23
Adresse: Weinlagerstrasse 11, 4056 Basel
Programm: Umnutzung Lagergebäude zu 64 Wohnungen, Café-Bar, Gewerberaum, Joker- und Gästezimmer, Gemeinschaftsraum, Dachterrasse, Musik-Proberäume, Velo-Parking, Einstellhalle
Energiestandard: Minergie-P-Eco
Bauherrschaft: Stiftung Habitat, Basel
Auftragsart: Generalplanung
Zusammenarbeit: Proplaning AG, Basel
Mitarbeit Wettbewerb: Rebecca Konnertz, Christina Ruckstuhl, Xijie Ma, Steffen Jürgensen
Mitarbeit Ausführung: Laurent Burnand (PL), Marco Rickenbacher (verantwortlicher Partner), Nahuel Barroso, Andreas Hasler, Luca Helbling, Witold Kabirov, Xijie Ma, Nadja Moser, Eva-Maria Nufer, Johannes Senn, Seraina Spycher, Laura Zgraggen
Baumanagement: Proplaning AG, Basel
Landschaftsarchitektur: Stauffer Rösch AG, Basel
Bauingenieur: Aerni + Aerni Ingenieure AG, Zürich
Bauingenieur: Aegerter & Bosshardt AG, Basel
Bauphysik & Akustik: Gartenmann Engineering AG, Basel
Haustechnik: Bogenschütz AG, Basel
Sanitär: Technik im Bau AG, Luzern
Elektroplanung: Edeco AG, Aesch
BIM-Koodination: Kaulquappe AG, Zürich
Signaletik: Büro Berrel Gschwind, Basel
Farbberatung: Archfarbe, Andrea Burkhard, Zürich
Bilder: Philip Heckhausen, Paola Corsini
Auszeichnungen: Jurypreis & Publikumspreis - Prix SIA 2024, Auszeichnung (Kategorie Umbau) - European Collective Housing Award 2024, Hase in Gold - Hochparterre «Die Besten» 2023, Auszeichnung Gutes Bauen Basel 2023, Gewinner (Kategorie Wohnen) - Arc Award 2023
Bestand - Pilzstütze
Stapelung der Pilzstützen
Foto: Philip Heckhausen
Grundriss 1. und 2. Obergeschoss, Wohnungen im Bestand mit Pilzstützen
Foto: Philip Heckhausen
Foto: Philip Heckhausen
Querschnitt
Grundriss 1. Obergeschoss, Wohnungen im Bestand mit Pilzstützen
Foto: Paola Corsini
Bestandsgebäude - Foto: Raphael Schicker, Stiftung Habitat
Foto: Philip Heckhausen
Grundriss Erdgeschoss, Rue Interieur und Wohnungen im Bestand mit Pilzstützen
Foto: Paola Corsini
Foto: Paola Corsini
Längsschnitt
Rue Interieur im Erdgeschoss - Foto: Paola Corsini
Rue Interieur im 3. Obergeschoss - Foto: Philip Heckhausen
Maisonette-Wohnung im 5. Obergeschoss - Foto: Paola Corsini
Grundriss 3. bis 5. Obergeschoss
Kollektive Dachterrasse - Foto: Paola Corsini
Foto: Paola Corsini
Foto: Paola Corsini
Foto: Philip Heckhausen

