Plan de Quartier Malley-Gare B, Lausanne - 2. Preis
In Prilly-Malley geht es um viel, denn hier liegt der meistfrequentierte Bahnhof des ‚Ouest Lausannois’, jenes Verbundes von acht Gemeinden, die ihre künftige Entwicklung gemeinsam koordinieren wollen. Diese Bündelung der Kräfte ist aufwändig, denn sie betrifft nicht nur verschiedene Gemeindegebiete, sondern zu immerhin 80% privates Grundeigentum. Erst vor diesem Hintergrund wird deutlich, was bereits erreicht ist: Der neue Stadtteil, der hier entsteht, ist von den öffentlichen Räumen her konzipiert worden, nicht von den privaten Territorien. Plätze, breite Strassen und Parks sind für die Allgemeinheit bereits gesichert, gut ausgestattet und detailliert geplant. Sie sind entscheidend für die Aneignung, die Belebung und damit für die Bildung von Identität in diesem neuen Stück Stadt.
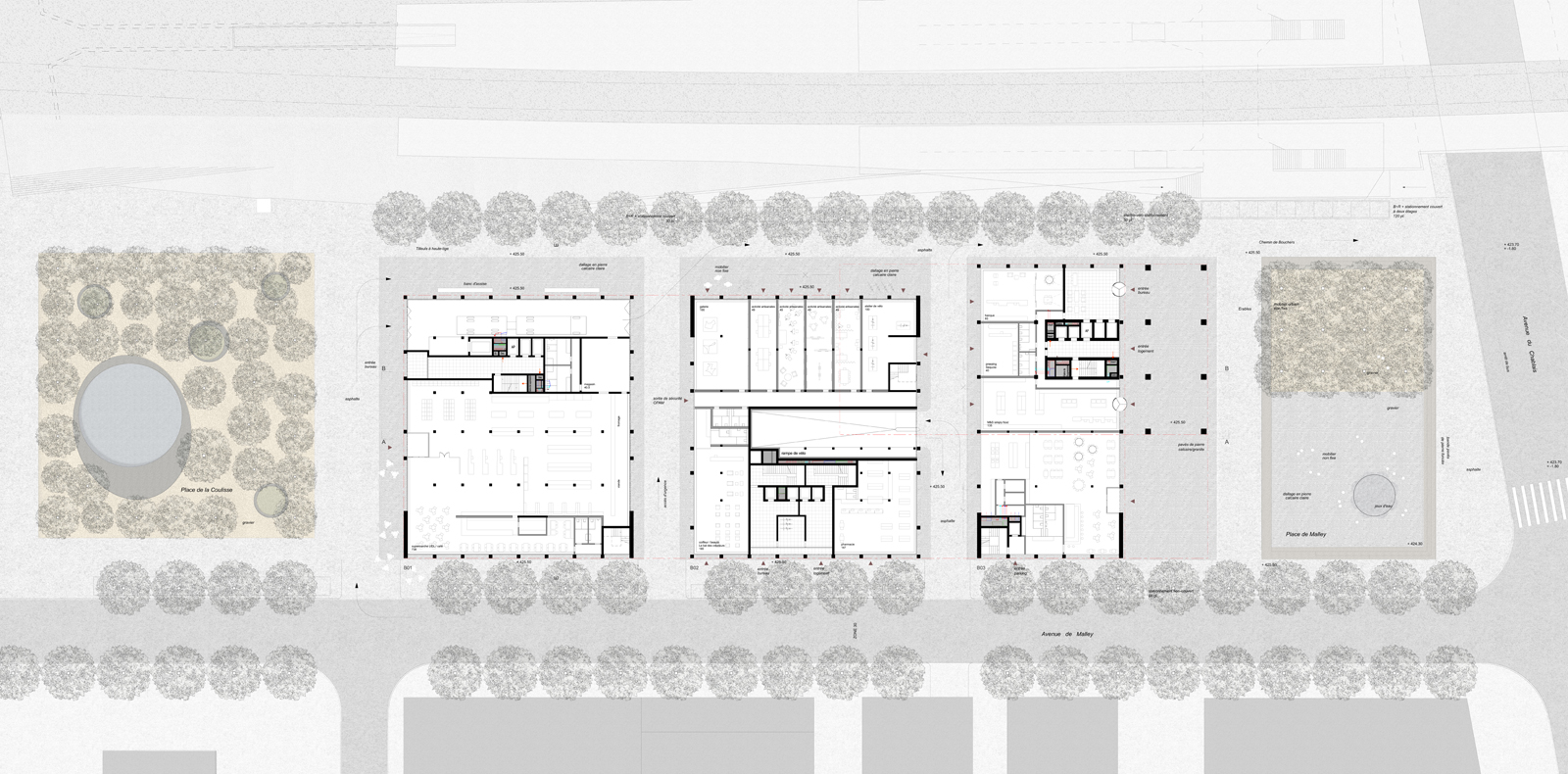
Es ist wichtig, die Planung der Häuser auf den Baufeldern in diesem grösseren Kontext zu diskutieren. Andernfalls werden die Baufelder zu insularen Binnenwelten, die sich selbst genügen, aber keinen Beitrag zur Belebung des öffentlichen Raums leisten. Darum wird im hier vorgestellten Projekt vorgeschlagen, alle Fussgängerströme an den Arealrändern zu konzentrieren, also entlang der Avenue de Malley oder dem Chemin des Bouchers.
Die Baukörper sind einfache, unaufgeregte, gut proportionierte Quader. Bewusst wird auf die Sprache von ‚signature buildings’ verzichtet. Denn weil nur schon die Dichte und Höhe der Gebäude aussergewöhnlich sind, entstehen dazwischen Räume von grosser Eindringlichkeit, die nicht durch lautes Design weiter aufgeladen werden sollten. Vielleicht könnte man die Ensemblewirkung des Rockefeller Center in New York als Referenz anführen: auch dort bezieht der Stadtraum seine Prägnanz gerade aus der Schmucklosigkeit, ja mechanischen Fassadensprache der Gebäude.
Grosse und kleine Baukörper stehen unabhängig voneinander (wie im Programm gewünscht), aber in freundschaftlicher Nähe zueinander. Sie bilden eine Gruppe, ein ‚Agglomerat’, ohne dass sie miteinander verschmelzen (‚Konglomerat’).
Programm: Büros, Wohnen, Gewerbe
Bauherrschaft: SBB CFF FFS Immobilier Développement
Mitarbeit: Cyrill Zugliani, Marie-Kristin Lutz, Sandra Villiger, Rebecca Konnertz, Nike Himmels, Laurent Burnand, Robin Barmettler, Sven Högger, Morris Enzmann, Nicolas de Courten, Matthias Berger
Landschaftsarchitektur: Anton & Ghiggi Landschaft Architektur GmbH, Zürich
Bauingenieur: Merz Kley Partner GmbH, Dornbirn
Haustechnik: Amstein + Walthert AG, Lausanne
Nachhaltigkeit: Intep Integrale Planung GmbH, Zürich
Brandschutz: Makiol Wiederkehr AG, Beinwil am See
Verkehrsplaner: Rombo GmbH, Zürich
Visualisierung: Zünd, Zürich
Situation
Visualisierung: Zünd
Aussenbild - Visualisierung: Zünd
Grundriss Erdgeschoss mit Umgebung
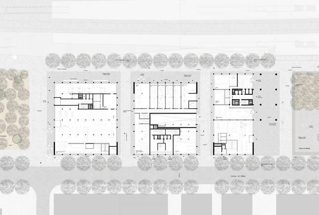
Regelgeschoss
Nachtblick - Visualisierung: Zünd
Innenbild Wohnung - Visualisierung: Zünd
Aussenbild - Visualisierung: Zünd

