Ökihof Zug
Die der Stadt zugewandte Seite des Ökihofs ist ein eigentliches Schaufenster. Abends leuchtet der ganze grosse, transluzente Baukörper. Die expressive Tragstruktur betont die Zeichenhaftigkeit dieses ‚decorated shed’; Ein Gebäude robust wie eine Maschine und leicht wie eine japanische Reispapierlampe.
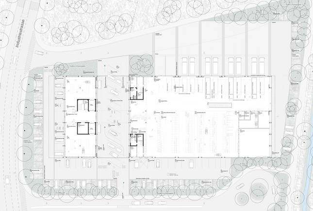
Die drei beteiligten Betriebe sind unter einem gemeinsamen Dach vereint und durch Weg- und Blickbeziehungen vielfältig miteinander verbunden. Wer etwas abzuliefern hat, fährt unter das Haus in den ‚Drive-In & Drop-Off’. Hier lässt sich witterungsgeschützt das Altgut ausladen. Das Anliefern ist denkbar bequem, denn die Wege sind kurz und die Verkehrsflüsse kreuzungsfrei. Die Wandfelder in der Gasse werden mit Baustoffen aus Altbauten und Fundgegenständen bespielt, wie die wechselnden Musterplatten einer Verkaufsausstellung.
Das Schichtenprinzip wird zum Gestaltungsprinzip: Die Tragstruktur aus einheimischen Beständen wird ganz direkt beplankt, je nach Raum mit Polykarbonatplatten oder Verglasungen. Diese ‚Do-it-yourself’-Anmutung animiert die Nutzer, selbst Hand anzulegen und ‚ihr’ Gebäude weiterzubauen. Zu dieser Haltung passt die konsequente Trennung von tragenden und trennenden Bauteilen.
Der verwendete Beton und Polykarbonat sind ihrerseits recykliert. Alle Stoffe sind auf die Kriterien niedriger Grauenergie und einfacher Rückbaubarkeit ausgewählt.
Programm: Ökihof / Recyclingzentrum
Bauherrschaft: Einwohnergemeinde Stadt Zug, vertreten durch das Baudepartement der Stadt Zug
Mitarbeit: Laura Zgraggen, Nike Himmels
Landschaftsarchitektur: Balliana Schubert Landschaftsarchitekten AG, Zürich
Bauingenieur: Merz Kley Partner GmbH, Dornbirn
Haustechnik: Planforum GmbH, Winterthur
Verkehrsplaner: Rombo GmbH, Zürich
Visualisierung: Indievisual AG, Zürich
Aussenbild - Visualisierung: Indievisual
Situation
Grundriss Erdgeschoss mit Umgebung
Aussenbild - Visualisierung: Indievisual
Aussenbild - Visualisierung: Indievisual

