Wohnhaus mit Wohnhalle, Baufeld D30,
Schönberg-Ost, Bern
Gemeinsam mit Rolf Mühlethaler und Graber Pulver Architekten konzipieren Esch Sintzel ein Baufeld in Berns neuem Quartier Schönberg-Ost. Der zugrundeliegende Masterplan von Hans Kollhoff bezieht sich auf bürgerliche Wohnquartiere der Jahrhundertwende, etwa das unmittelbar angrenzende Schosshaldenquartier.
Die Aufgabenstellung der beiden Wohnhäuser von Esch Sintzel sind grundverschieden: statushoch und grosszügig versus radikal reduziert und günstig. Daraus werden zwei grundverschiedene typologische Konzepte abgeleitet: ein zentripetaler (auf eine innere Mitte ausgerichteter) Grundriss für die grossen Wohnungen, ein zentrifugaler (von der Mitte wegstrebender) für die kleinen.
In der bürgerlichen Wohnhalle als Zentrum fand sich ein typologisches Vorbild, das auf eine innere Mitte hin ausgerichtet ist und so die Konfrontation mit den nahen Nachbarhäusern vermeidet. In jeder Wohnung spannen drei Loggien Schwellenräume zwischen privater und öffentlicher Welt auf.
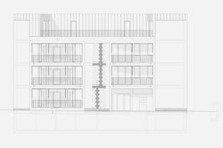
Die Kleinwohnungen im anderen Haus wurden hingegen auf äusserste Effizienz getrimmt. Grosse Schiebefenster in den Gebäudeecken ersetzen Loggien. Um Platz für das verschobene Fenster zu schaffen, ist hier die Aussenwand jeweils nach aussen versetzt. So entsteht aus der Bewegung der Fenster eine Bewegung der Fassadenflächen, die allein durch diese Tiefenstaffelung plastisch gegliedert werden.
Planung und Ausführung: 2011 – 15
Adresse: Bitziusstrasse 42, 3006 Bern
Programm: 8 Wohnungen
Bauherrschaft: Anlagestiftung Pensimo, Zürich
Bausumme: CHF 3,51 Mio. (BKP 2)
Mitarbeit: Jonathan Bopp (PL), Tobias Abegg, Eva Nufer, Marco Rickenbacher, Patrick Schori, Pia Schwyter, Nicola Wild
Landschaftsarchitektur: 4D Landschaftsarchitektur, Bern
Bauingenieur: SMT AG Ingenieure + Planer, Bern
Haustechnik: Amstein + Walthert Bern AG
Bilder: Hannes Henz
Foto: Hannes Henz
Wohnhalle: Grundriss Haus «Pensimo»
Materialisierung
Ansicht Haus Pensimo
Situation
Foto: Hannes Henz

