Erweiterung Schulanlage Mettmenstetten
Als Mettmenstetten im 19. Jahrhundert sein erstes Schulhaus erhielt, wurde es ausserhalb des Dorfes, aber in der Mitte zwischen den zwei Siedlungen Unter- und Obermettmenstetten errichtet. Der Widerspruch dieser beiden Lesarten – ‚ausserhalb in der Mitte’ – prägt das Areal der Schule bis heute, und damit prägt er auch die Potentiale und Herausforderungen der Aufgabe.
Mit der Erweiterung der Schulanlage soll einerseits der öffentliche Charakter der Schulanlage gestärkt, also seine Zentrumslage betont werden. Dazu wird baulich erheblich verdichtet. Zur Ortsmitte wird das Schulareal deshalb aber nicht. Das Bild des Dorfschulhauses hat es längst weit hinter sich gelassen und nähert sich stattdessen immer mehr einem allen zugänglichen ‚Bildungscampus’ in parkartiger Umgebung an. Der Charakter von ‚Schulbauten im Park’ prägt auch den Ausdruck der neuen Schulgebäude: sie wollen den Parkraum begleiten und orientieren sich an den berühmten Pavillonschulen der Nachkriegszeit – etwa an Beispielen von Jacobsen, Scharoun oder Paillard - die einen innigen Bezug zu Licht, Luft und Natur suchen, um eine anregende, freie Lernumgebung zu schaffen. Der Freiraum übernimmt die Aufgabe, Ober- und Untermettmenstetten feinmaschig miteinander zu verknüpfen, ihre ausfransenden Ränder zu vernähen. Die Wege zwischen den beiden Siedlungskernen legen zusammen mit den begleitenden Gehölzstrukturen die ordnende Hauptrichtung fest. Sie generieren Raumkammern, welche die Gebäudeausrichtung vorgeben und die verschiedenen Nutzungen zonieren.
Planung und Ausführung: 2017 - 2022
Adresse: Schulhausstrasse/Niederfeldstrasse, 8932 Mettmenstetten
Programm: Erweiterung Schulanlage mit Turnhalle, Tagesstruktur, Primarschulhaus, Bibliothek
Energiestandard: Minergie-Eco
Bauherrschaft: Gemeinde Mettmenstetten
Auftragsart: Generalplanung
Bausumme: CHF 30 Mio. (BKP 2)
Zusammenarbeit: BGS & Partner Architekten AG, Rapperswil
Mitarbeit Wettbewerb: Andreas Wipf, Cyrill Zugliani, Nike Himmels
Mitarbeit Ausführung: Andreas Wipf (PL), Cyrill Zugliani (PL Stv.), Tizian Gasser, Markus Nyfeler, Pia Schwyter-Lanter, Sarah von Wartburg, Nico Wild, Laura Zgraggen
Landschaftsarchitektur: Mavo GmbH, Zürich
Bauingenieur: Schnetzer Puskas Ingenieure AG, Zürich
Holzbauingenieur & Brandschutz: Bachofner GmbH, Frümsen
Baumanagement: BGS & Partner Architekten AG, Rapperswil
Elektroplaner: Gutknecht Elektroplanung AG, Au/ZH
Haustechnik & Sanitärplanung: Planforum GmbH, Winterthur
Bauphysik & Akustik: Mühlebach Partner AG, Winterthur
Lichtplaner: Mosersidler AG, Zürich
Farbberatung: Archfarbe, Andrea Burkhard, Zürich
Bilder: Georg Aerni
Auszeichnungen: Nomination - Arc Award 2023
Turnhallengebäude mit Tagesstruktur - Foto: Georg Aerni
Blick aus der alten Sennerei in Richtung Primarschule und Turnhallengebäude - Foto: Georg Aerni
Situation
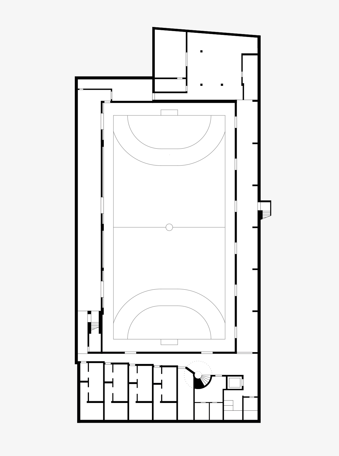
Grundriss Erdgeschoss mit Umgebung
Turnhalle mit Tagesstruktur - Foto: Esch Sintzel Architekten
Turnhalle mit Tagesstruktur - Foto: Georg Aerni
Turnhalle mit Tagesstruktur - Foto: Georg Aerni
Turnhalle mit Tagesstruktur - Foto: Georg Aerni
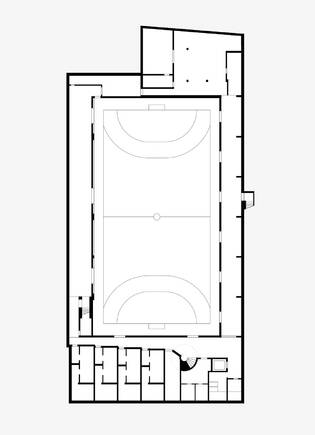
Turnhalle mit Tagesstruktur - Grundriss Hallengeschoss
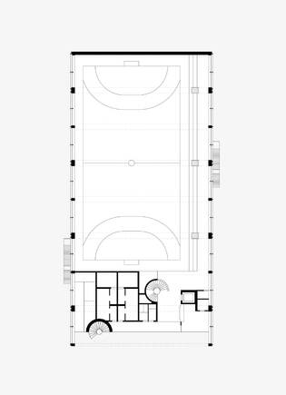
Turnhalle mit Tagesstruktur - Grundriss Eingangsgeschoss Halle
Turnhalle mit Tagesstruktur - Grundriss Obergeschoss (Tagesstruktur)
Turnhalle mit Tagesstruktur - Foto: Georg Aerni
Turnhalle mit Tagesstruktur - Foto: Georg Aerni
Primarschule - Grundriss
Primarschule - Foto: Georg Aerni
Primarschule - Foto: Georg Aerni
Primarschule - Foto: Georg Aerni
Mediathek in der alten Sennerei - Foto: Georg Aerni
Mediathek in der alten Sennerei - Grundriss Erdgeschoss
Mediathek in Alte Sennerei - Grundriss Obergeschoss
Mediathek in der alten Sennerei - Foto: Georg Aerni
Mediathek in der alten Sennerei - Foto: Georg Aerni
Schnitt
Turnhallengebäude mit Tagesstruktur - Foto: Georg Aerni
Turnhallengebäude mit Tagesstruktur - Foto: Georg Aerni

