Schwamendinger-Dreieck, Zürich - 3. Preis
Noch immer ist Schwamendingen gekennzeichnet von einen Patchwork aus Siedlungen ähnlicher Dichte, die gleichmässig über das Quartier verteilt sind. Bauliche oder gar sozialräumliche Brennpunkte gibt es in diesem Gefüge kaum – vielleicht sind es einzig die grösseren Knoten im Netz der Verkehrsströme, welche Orte mit einer gewissen Zentralität kennzeichnen: so wie im ‚Schwamendinger Dreieck’, wo zwei wichtige Ausfallstrassen zusammenkommen. Das verleiht dem Ort stadträumliche Bedeutung, belastet ihn aber auch mit starken Verkehrsimmissionen.
Gerne würde man sich diese Ausfallstrassen eines fernen Tages als Boulevards vorstellen, städtisch gefasste, belebte Wohn- und Geschäftsadressen im stark verdichteten Zürich von morgen. Viel wahrscheinlicher ist aber wohl, dass die Strassen unwirtliche Verkehrskorridore bleiben, denn die Hochleistungs-Trassen des Trams bilden kaum überwindbare Barrieren. Und vielleicht gehört gerade die Durchlässigkeit der Schwamendinger Bebauungsstruktur - die eben keine Verdichtung der Strassenränder will - zu den Besonderheiten des Ortes, die weiterzuführen sich lohnt?
Gesucht wäre demnach eine Bebauungsstruktur, welche oszilliert zwischen der Schliessung der Strassenflucht und dem Offenhalten der Gartenstadt. Dieses Oszillieren – wörtlich ‚Schwingen’ – wird hier beim Wort genommen, indem das Gebäudevolumen zu zwei Mäandern geformt wird. Der auslösende ‚Impuls’ für diese Schwingungen geht von den beiden Hochbauten aus, welche an der Kreuzung der Strassen den baulichen Auftakt machen. Von hier aus strahlen die Baukörper in kräftigen Wellen stadtauswärts aus. Jedes Wellental öffnet einen Hofraum, jeder Wellenkamm schliesst eine Strassenflucht.
Die Mäanderform leistet dabei zweierlei: Einerseits führt sie die konkurrierenden städtebaulichen Nachbarschaften mit ihren mal strassenbegleitenden, mal querstehenden Bebauungsmustern elegant zusammen, andererseits formt sie unterschiedliche Sozialräume mit spezifischer Widmung und prägnantem Charakter.
Adresse: Schwamendingen Dreieck, Baufeld B, Dübendorfstr./ Winterthurers. / Roswiesenstr., Zürich- Schwamendingen
Programm: Wohnen, Wohnpflegeheim, Büros und Gewerbe im EG
Bauherrschaft: Baugenossenschaft Glattal Zürich (BGZ)
Kollaboration: Ramser Schmid Architekten, Zürich
Mitarbeit: Rebecca Konnertz, Steffen Jürgensen, Simon Rott, Mattia Furler
Landschaftsarchitektur: Schmid Landschaftsarchitekten GmbH, Zürich
Verkehrsplanung: Rombo GmbH, Zürich
Energie- und Haustechnik: Planforum GmbH, Winterthur
Akustik und Bauphysik: Wichser Akustik & Bauphysik AG, Zürich
Visualisierung: Zünd, Zürich
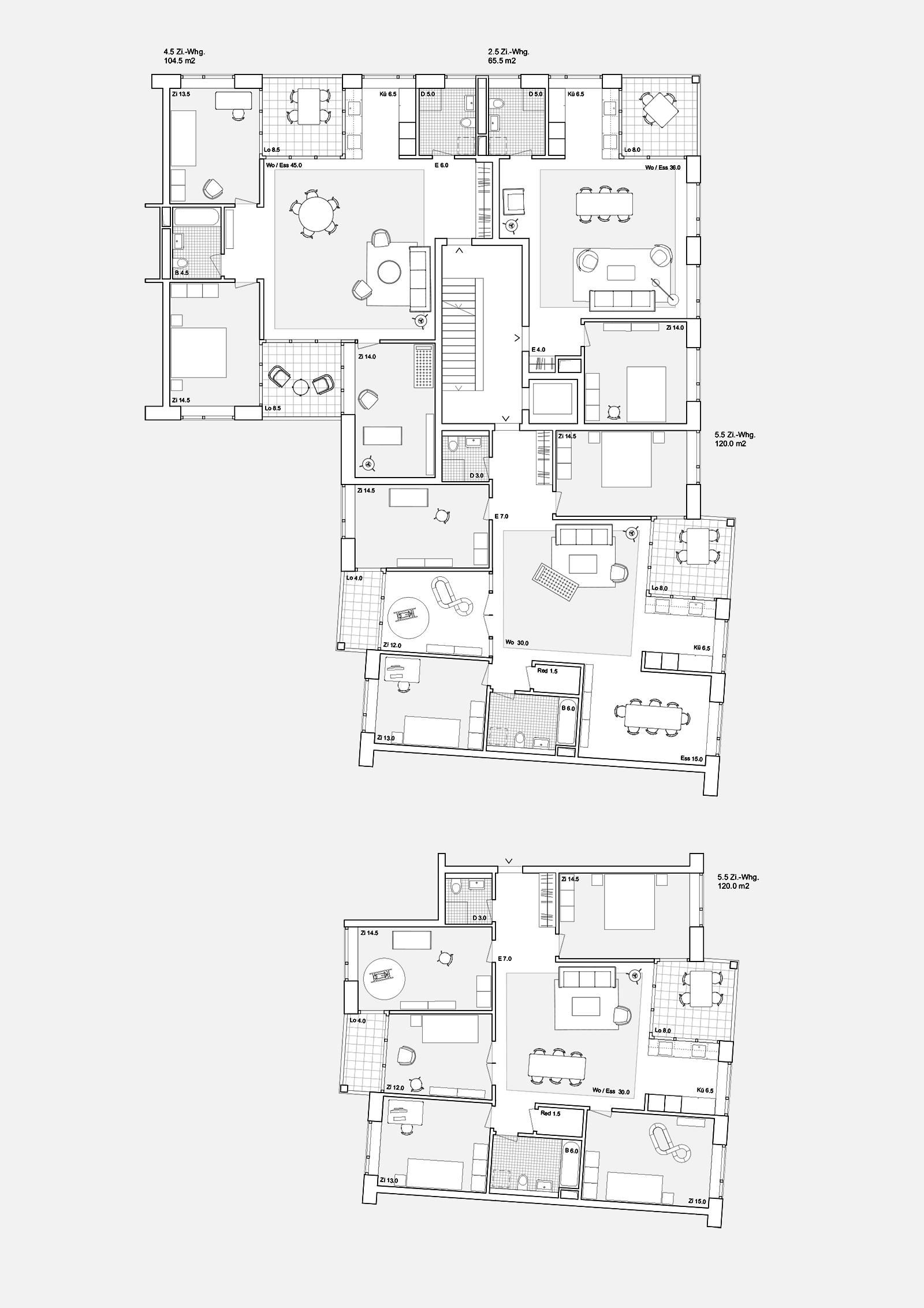
Grundriss Regelgeschoss
Visualisierung: Zünd
Schwarzplan
Visualisierung: Zünd
Situationsmodell - Foto: Dominik Zietlow
Situation
Visualisierung: Zünd
Wohnungen
Ansicht

