Wohnhäuser Südstrasse, Zürich-Seefeld
Im 17. Jahrhundert begannen wohlhabende Bürger, ausserhalb der Zürcher Stadtmauern Sommerhäuser zu errichten und weitläufige Gärten anzulegen, von denen die meisten heute allerdings dicht überbaut sind.
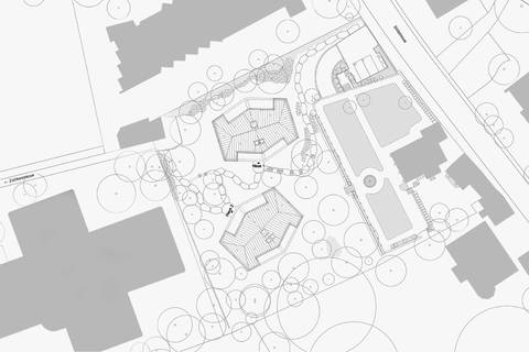
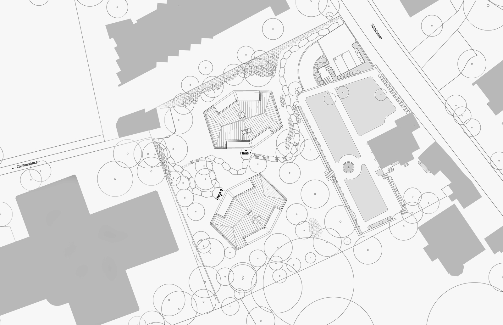
Die weiten Gärten und die dichte Nachbarschaft: diese Pole prägen die Konzeption zweier Wohnhäuser, die in einem der letzten freien Gärten entstehen sollen. Die neuen Gebäude sind weit von den alten abgerückt und als leichte Pavillons artikuliert. Sie stehen quer zum Hang auf rhombischer Grundfläche, um dem Hangverlauf wenig Widerstand entgegenzusetzen und weite Zwischenräume freizuhalten.
Nicht die Sicht auf den fernen See, sondern der Blick in die nahen Bäume machen den besonderen Reiz dieses Ortes aus. Ein umlaufendes Bandfenster öffnet deshalb alle Wohnräume zum Garten - ohne dass die Bewohner im Schaufenster wohnen müssten, denn Brüstung und Sturz geben den Räumen Halt und ihren Bewohnern Schutz.
Die allseitige Zuwendung zum Garten hat ihre innere Entsprechung in einer Raumfolge, die von weiten Blickbeziehungen gekennzeichnet ist und nur durch wenige Körper und Wände gegliedert wird. Wo diese nah beieinander stehen, lassen sie sich mit versenkten Türen schliessen. So lässt sich der fliessende Allraum in private Kammern verwandeln.
Planung und Ausführung: 2016-2020
Adresse: Südstrasse 26 + 28, 8008 Zürich
Programm: Neubau mit 14 Wohnungen
Bauherrschaft: Privat
Bausumme: CHF 9 Mio. (BKP 2, KV)
Mitarbeit Wettbewerb: Nicolas De Courten, Micha Weber
Mitarbeit Ausführung: Beat Lengen (PL), Matthias Berger, Michael Furrer, Tizian Gasser, Nike Himmels, Sven Högger, Eva Nufer, Sarah von Wartburg, Cyrill Zugliani
Landschaftsarchitektur: Kolb Landschaftsarchitektur GmbH, Zürich
Bauingenieur: Dr. Lüchinger + Meyer Bauingenieure AG, Zürich
Baumanagement: Steiner Hutmacher Bauleitung AG, Zürich
Elektroplanung: Gutknecht Elektroplanung AG, Au (ZH)
Sanitärplanung & Haustechnik: Planforum GmbH, Winterthur
Bauphysik & Akustik: Bakus Bauphysik und Akustik GmbH, Zürich
Brandschutz: Esch Sintzel GmbH, Zürich
Farbberatung: Andrea Burkhard, Zürich
Bilder: Georg Aerni, Sven Högger
Film von Severin Kuhn: Raumerfahrung einer Wohnung
Foto: Georg Aerni
Foto: Georg Aerni
Dachaufsicht
Foto: Georg Aerni
Grundriss
Foto: Georg Aerni
Foto: Georg Aerni
Foto: Georg Aerni
Foto: Georg Aerni
Foto: Georg Aerni
Foto: Georg Aerni
Foto: Georg Aerni
Foto: Georg Aerni
Foto: Georg Aerni

