Wohnsiedlung Kuppe, Quartier Trift, Horgen
Die Trift-Siedlung am Rand von Horgen-Oberdorf soll aufzeigen, wie nachhaltige Planung aussehen kann, wenn sie umfassend gedacht wird: wirtschaftlich, energieeffizient, sozial vernetzt. Vier Architektenteams konzipieren vier Baufelder, die heute noch unbebaut sind. Verbunden werden die Areale auf zwanglose Art durch einen Weg, der breit und komfortabel ist, weil er höhenparallel verläuft. Das Baufeld von Esch Sintzel ist von einer sanften Kuppe gekennzeichnet, der einzigen ebenen Fläche im Hangverlauf.
Damit diese Kuppe freibleiben kann, stehen die Häuser an ihren Rändern. Die 5 Wohnhäuser und das Velohaus sind zerbrechliche, dünnwandige Häuser aus Holz, die hier gleichsam provisorisch aufgestellt worden sind. Vielleicht erinnern sie auch an Zirkuswagen, die zu einer Wagenburg gruppiert sind, und die Zugangswege sind die Reifenspuren der Traktoren. Es erweist sich als gar nicht so einfach, unberührtes, freies Land zu bebauen – daher wohl die Vorsicht dieser Landnahme auf Zeit.
Die Baukörper vereinigen unter ihren weit ausladenden Dächern eine bunte Mischung von Wohnungen. Diese sind komplementär ineinander gefügt und thematisieren so räumlich das Zusammenleben unterschiedlicher Lebensformen.
Planung und Ausführung: 2015 - 2021
Adresse: Bergstrasse 79-87, 8810 Horgen-Oberdorf
Programm: 30 Wohnungen (1,5 - 4,5 Zimmer)
Energiestandard: SIA-Effizienzpfad Energie (2000W/d)
Bauherrschaft: Trift Bewirtschaftung von Grundstücken AG
Auftragsart: Generalplaner, Totalunternehmer
Zusammenarbeit: BGS & Partner Architekten AG, Rapperswil
Mitarbeit Wettbewerb: Jonathan Bopp (PL), Sébastien Werlen, Jonas Blum, Christian Ott, Nicola Wild, Jana Stratmann, Jenna Klupsch
Mitarbeit Ausführung: Aline Sidler (PL), Jonas Blum (PL), Jillin Ettlin (PL), Pia Schwyter-Lanter (PL), Raphael Eichenmann, Mattia Furler
Landschaftsarchitektur: Manoa Landschaftsarchitekten GmbH, Meilen
Bauingenieur: EBP Schweiz AG, Zürich
Baumanagement: BGS & Partner Architekten AG, Rapperswil
Elektroplanung: Enerpeak AG, Dübendorf
Haustechnik: Planforum GmbH, Winterthur
Bilder: Philip Heckhausen
Auszeichnungen: Auszeichnung - Architekturpreis Kanton Zürich 2022, Sonderpreis «Der Grüne Leu» - Architekturpreis Kanton Zürich 2022,
Archithese Swiss Performance 2022, Shortlist-Platzierung - Arc Award 2022, Shortlist-Platzierung (new construction) - European Collective Housing Award, Nominierung - Swiss Architecture Yearbook SAY 2023
Foto: Philip Heckhausen
Schwarzplan
Foto: Philip Heckhausen
Situation
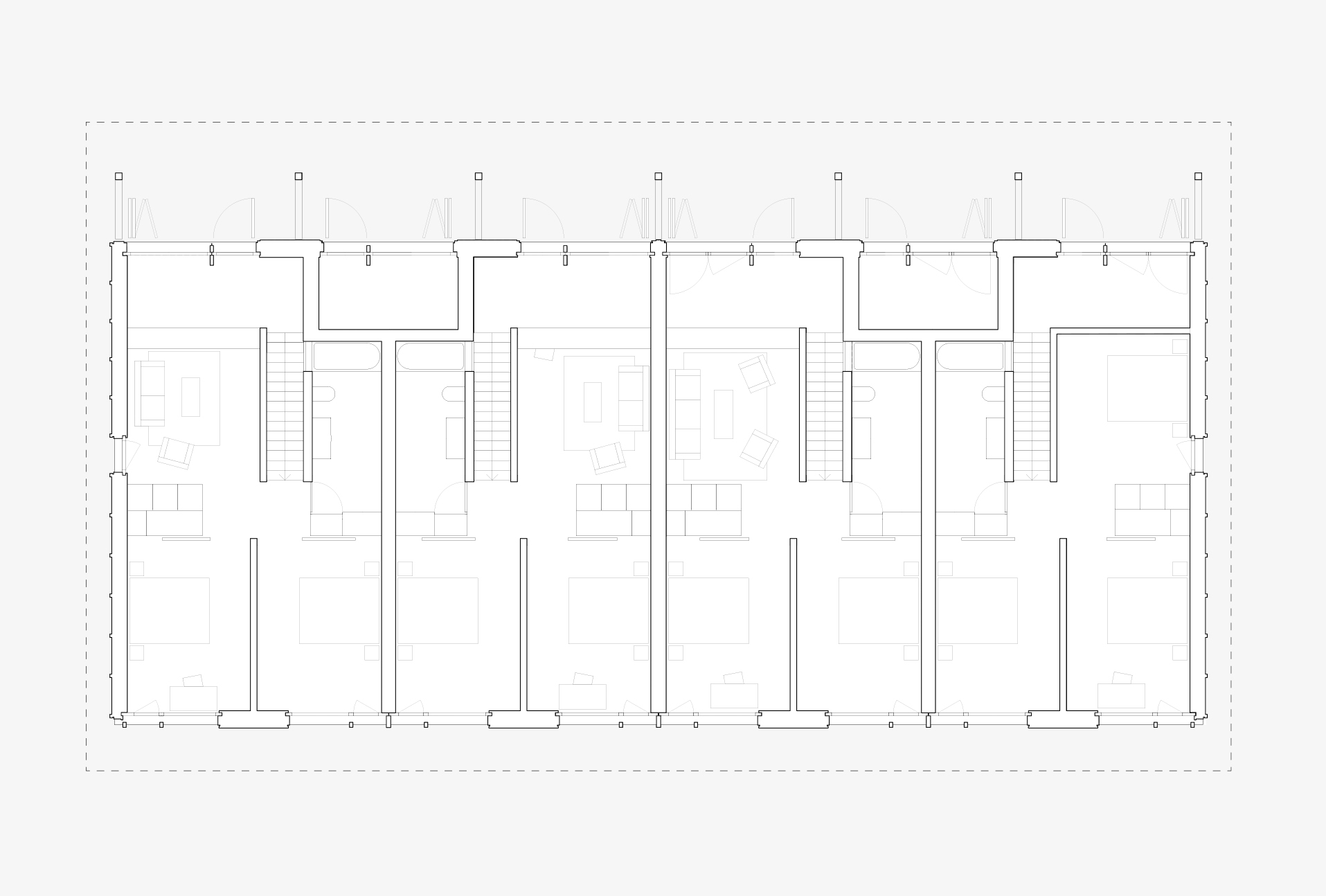
Erdgeschoss
Foto: Philip Heckhausen
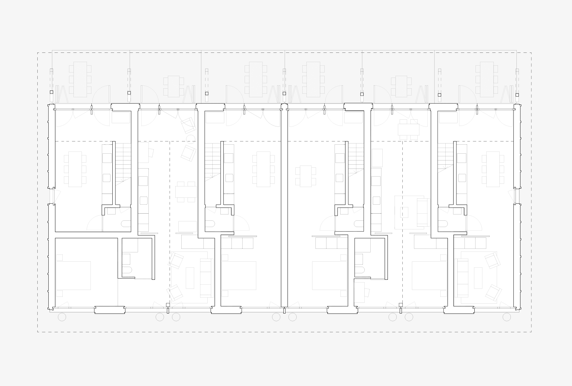
Obergeschoss
Foto: Philip Heckhausen
Foto: Philip Heckhausen
Foto: Philip Heckhausen

