Wohnüberbauung Maiengasse, Basel
In den Höfen der Basler Innenstadt haben sich ganz allmählich immer mehr Einbauten breitgemacht. Garagen, Werkstätten und Schuppen, die den Hofraum verdrängten, werden nun vielerorts entfernt. Dabei gehen allerdings auch lebendige Soziotope verloren. Wohnen und Arbeiten waren hier genauso wenig voneinander geschieden wie die privaten Territorien zwischen Nachbarn. Dieser Geist des Gewerbehofs von gestern lässt sich nicht einfach in den Wohnhof von morgen kopieren, aber übersetzen. Deshalb spricht das neue Haus die Sprache der früheren transitorischen Hofeinbauten. Leicht und niedrig steht es im Hof, aus Holz gefügt wie schon die gewerblichen Vorgängerbauten. Fast möchte man meinen, es sei provisorisch hier, wäre da nicht die entschiedene städtebauliche Setzung.
Die beiden Strassen, die das Planungsareal begrenzen, gewinnen aus ihrer Verschiedenheit eine sehr spezifische Identität. Die Hebelstrasse ist eine Verbindungsstrasse zur St.Johann-Vorstadt, die Maiengasse war dagegen zunächst nicht mehr als ein Pfad. Die Hebelstrasse bildet einen klar gefassten, formellen Strassenraum, die Maiengasse dagegen eine informell und niedrig bebaute Gasse. Darum wird mit dem Haus an der Hebelstrasse bloss eine Baulücke geschlossen, mit dem Hofgebäude dagegen das heterogene Gefüge der Maiengasse weitergebaut.
Siehe auch Wohnhaus Hebelstrasse
Planung und Ausführung: 2014 – 18
Adresse: Maiengasse 7-15, 4056 Basel
Programm: 39 Wohnungen (1,5 – 6,5 Zimmer), Kindergarten
Bauherrschaft: Immobilien Basel-Stadt
Auftragsart: Generalplanung
Mitarbeit: Marco Rickenbacher (PL), Nicola Wild (PL Stv.), Matthias Berger, Nike Himmels, Maneeza Ali Khan, Sarah Maunder
Baumanagement: Büro für Bauökonomie AG, Basel
Landschaftsarchitektur: Schmid Landschaftsarchitekten GmbH, Zürich
Bauingenieur: EBP Schweiz AG, Zürich
Haustechnik: Vadea AG, St. Gallen
Elektroingenieur: Edeco AG, Aesch
Bauphysik: BWS Bauphysik AG, Winterthur
Brandschutz: Bachofner GmbH, Frümsen
Lichtplaner: TT Licht GmbH, Zürich
Farbberatung: Archfarbe, Andrea Burkhard, Zürich
Kunst am Bau: Jürg Stäuble, Basel
Bilder: Kuster Frey
Auszeichnungen: Nationale Auszeichnung in Gold & 1. Rang Region Nord - Prix Lignum 2021, «Official Mention» - Premio Europeo di Architettura Matilde Baffa Ugo Rivolta 2021, Hase in Bronze - Hochparterre «Die Besten» 2018, Auszeichnung Guter Bauten 2018, Prämierung Heimatschutz Basel 2018
Zugehöriges Projekt: Wohnhaus Hebelstrasse
Foto: Kuster Frey
Schwarzplan
Foto: Kuster Frey
Foto: Kuster Frey
Foto: Kuster Frey
2. Obergeschoss
Foto: Kuster Frey
Foto: Kuster Frey
Foto: Kuster Frey
Erdgeschoss mit Umgebung
Foto: Kuster Frey
Foto: Kuster Frey
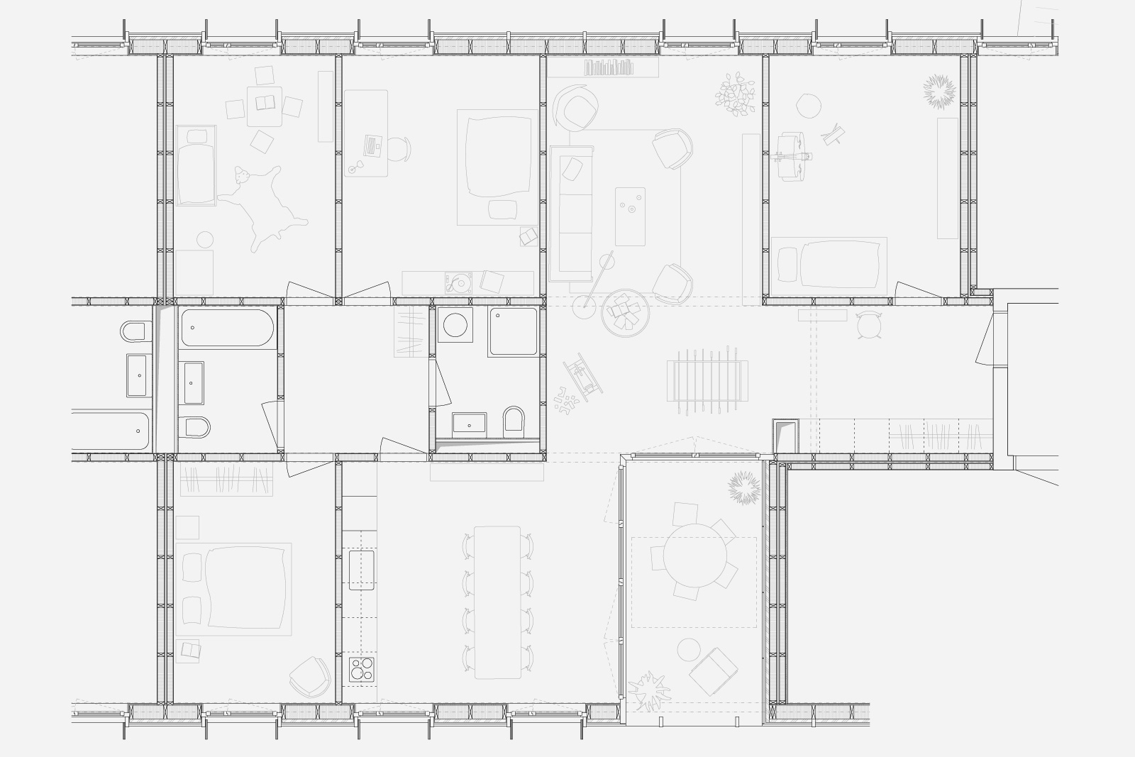
Typengrundriss Maisonette
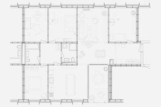
Typengrundriss Geschosswohnung
Tragstruktur Holzbau
Eindruck von der Baustelle
Modelbild
Modelbild
Eindruck von der Baustelle

