Wohnüberbauung Stähelimatt, Zürich-Seebach
Wie Kreuzfahrtschiffe sind zwei Wohngebäude am äussersten Rand von Zürich vor Anker gegangen. Die lang gestreckten Baukörper führen das Patchwork der Siedlungsmuster im Quartier fort, übernehmen aber nicht deren kleinen Massstab, sondern nehmen den grossen Atem des nahen Landschaftsraums vorweg. Umlaufende Bänder aus Aluminiumblech gliedern die Fassade. Der Künstler Jürg Stäuble hat diesen Bändern ein Lochbild eingeschrieben, das auf der Überlagerung zweier Wellen beruht, die sich orthogonal über die Fassade ausbreiten. «Der Effekt ist vielfältig. Von Ferne sorgt das vibrierende Ornament für Unverwechselbarkeit am Stadtrand. Im reflektierenden Aluminium schwarz, im Gegenlicht als kleine Lichtinseln, zeichnen sich die Lochmuster auf der Fassade ab. Mehrfach gespiegelt von Fensterscheiben, wandern sie im Innern mit dem Tageslicht unendlich variabel über Böden und Wände, nehmen flüchtig die Form an von maurischen Motiven, Jean Arp, Quecksilber, Wolken, Eierdottern» (Annina Zimmermann im Infoblatt Kunst und Bau der Stadt Zürich).
Ausführung: 2004 – 07
Adresse: Riedenholzstrasse 12 – 30, 8052 Zürich
Programm: 76 Familienwohnungen (3,5 – 5,5 Zimmer)
Bauherrschaft: Baugenossenschaften Linth-Escher und Schönau, Zürich
Bausumme: CHF 24.8 Mio. (BKP 2)
Mitarbeit Wettbewerb: Regula Zwicky
Mitarbeit Ausführung: Regula Arpagaus, Stefanie Frömmcke, Manuel Joss, Britta Küest, Pia Lanter, Claudia Mühlebach, Andrea Ringli
Baumanagement: GMS Partner AG, Zürich
Landschaftsarchitektur: Hager Landschaftsarchitekten AG, Zürich
Bauingenieur: Ernst Basler + Partner AG, Zürich
Kunst am Bau: Jürg Stäuble, Basel
Bilder: Walter Mair
Foto: Walter Mair
Situation
Regelgeschoss
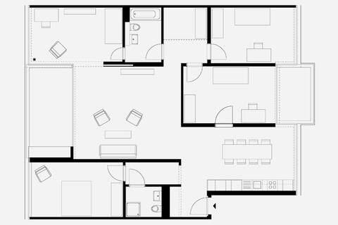
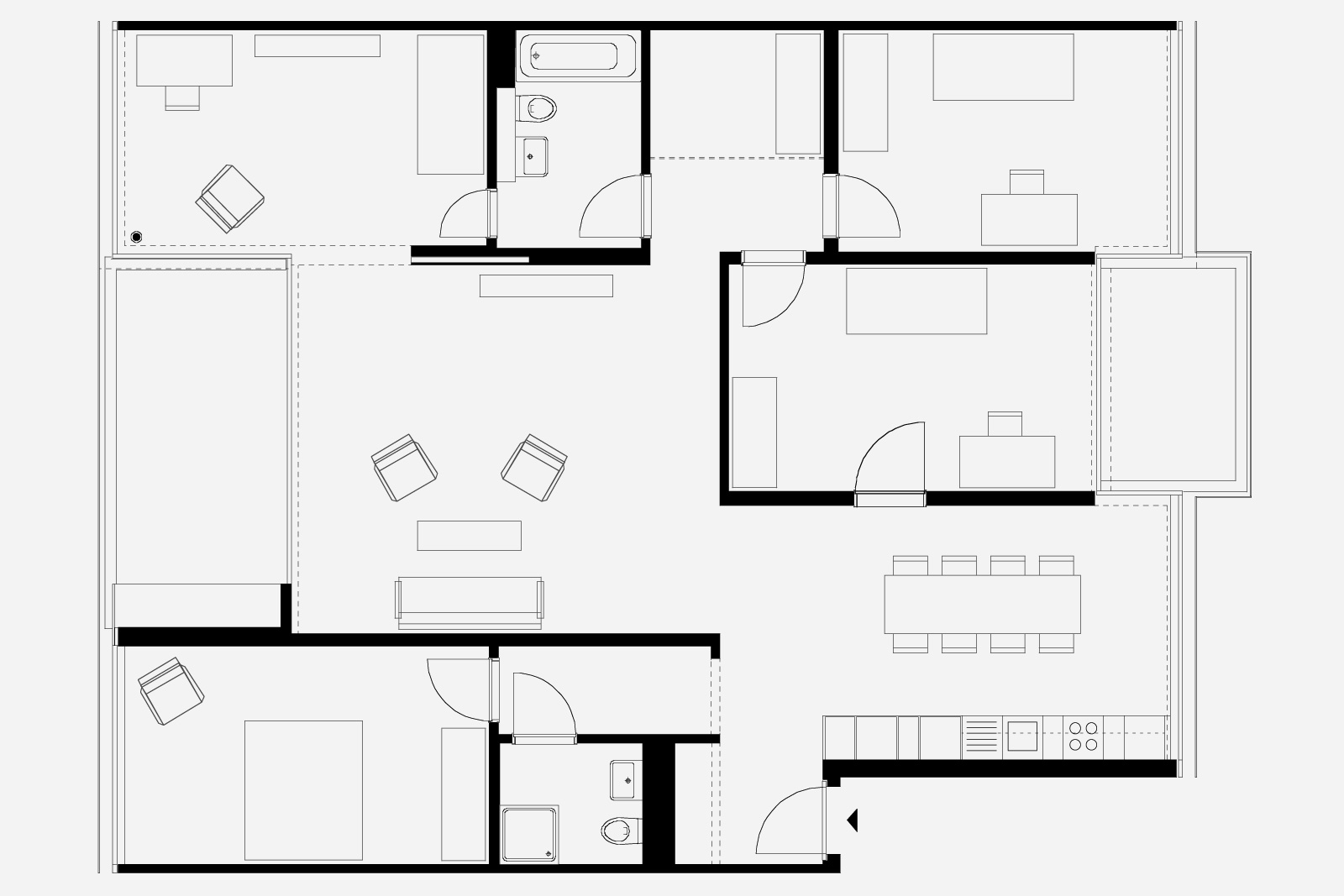
Grundriss Standardwohnung
Foto: Walter Mair
Foto: Walter Mair
Foto: Walter Mair
Foto: Walter Mair
Ansichten
Kunst am Bau: Jürg Stäuble, «Über Kreuz», 2005
Foto: Walter Mair
Foto: Walter Mair
Foto: Walter Mair

